L’intervento riguarda una delle due porzioni in cui era stata frazionata questa villa nel pinerolese, costruita negli anni Settanta.

La richiesta è stata quella di occuparsi della porzione est con una ristrutturazione completa che preveda la ridistribuzione degli spazi interni, un ampliamento del volume esistente e la revisione degli esterni.
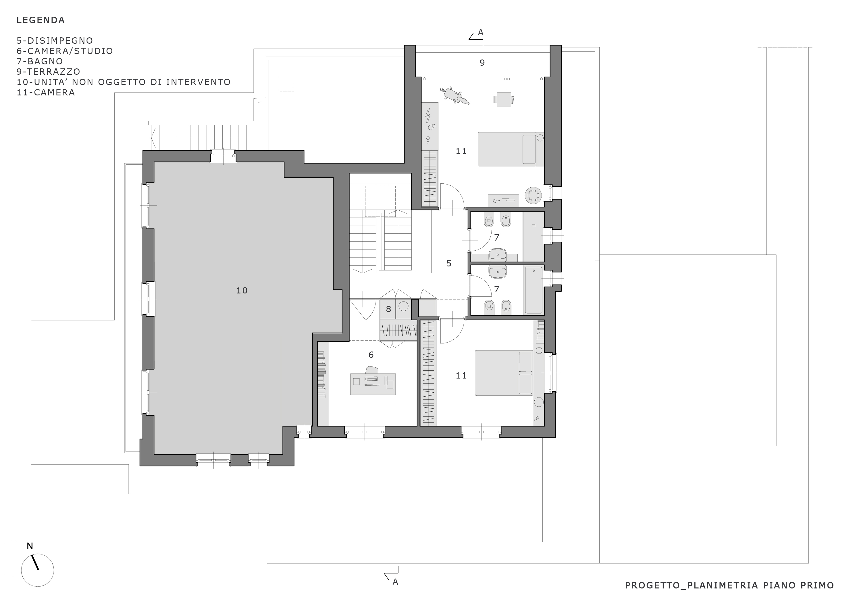
Si pone il duplice problema di rendere godibile l’ampio giardino per entrambe le unità immobiliari nella stessa misura e di garantire una certa privacy a entrambe le parti senza dividere fisicamente il parco. Prevediamo così di coprire parte della zona antistante i garage interrati, in modo da collegare il giardino con la zona davanti all’ingresso con una struttura pedonabile in doghe di legno a secco. Sostituiamo la vecchia tettoia addossata al fronte sud che limitava la vista e toglieva luce con una nuova struttura che garantisca il giusto ombreggiamento del fronte sud e allo stesso tempo renda più luminosa la zona living. In questo modo riconfiguriamo una gradevole zona pranzo esterna. Rivediamo la distribuzione al piano terra prevedendo una grande zona giorno con cucina aperta, camera ospiti, bagno e lavanderia. Manteniamo la scala esistente cambiandone solo rivestimento e parapetti, per riproporzionarla e per darle un aspetto più contemporaneo. Al piano superiore rivediamo la distribuzione dei locali e inseriamo un nuovo volume che interseca la falda inclinata del tetto, ottenendo così tre camere da letto e due bagni. Scegliamo di eliminare i due piccoli abbaini preesistenti sul fronte nord; quello sulla scala viene sostituito da un lucernario che ne migliora sensibilmente l’illuminamento e l’altro viene sostituito dal volume dell’ampliamento, che termina con una parete interamente vetrata con vista verso il centro cittadino. Per il nuovo volume è previsto un rivestimento in lamiera, analoga finitura del nuovo volume al piano terra. E’ previsto un isolamento a cappotto su tutta la porzione oggetto d’intervento e un nuovo impianto di riscaldamento radiante a pavimento, che sostituisce un vecchio impianto ad aria.









